Nouvelle construction » Villa » Aspe »
Rechercher sur la carte

Villa · Nouvelle construction

Villa · Poligono 19

586.000€
REF: NB-39645
Réf.:NB-39645




Alicante · Aspe · Poligono 19

Villa · Nouvelle construction
586.000 €
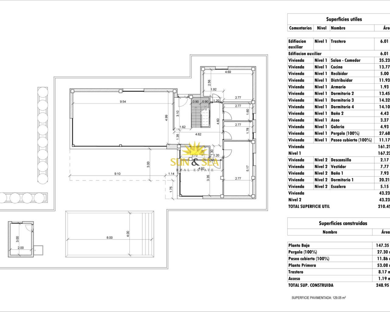
Construit: 248m2
Intrigue: 13.172m2
Chambres: 4
Salles de bain: 3
Piscine
Ref: NB-39645
Informer le prix baisse
Ref: NB-39645




Alicante · Aspe · Poligono 19

Villa · Nouvelle construction
Fonctionnalités en vedette
Chambres: 4
Salles de bain: 3
Construit: 248m2
Intrigue: 13.172m2
Piscine: Privé
Jardin
Piscine privée
Gated
Near Schools
Air Conditioning: Pre-Installed
Double Bedrooms: 4
Number of Parking Spaces: 1
Under-Build / Basement
Space
Terrace: 38 Msq.
Location: Mountain
Beach: 40000 Meters
Useable Build Space: 210 Msq.
Énergie
Énergie
B
Description de la propriété

Villas neuves situées dans la commune d'Aspe. Villas neuves avec plusieurs modèles au choix, comprenant 2, 3 ou 4 chambres, sur un ou deux étages et construites avec dalle ou structure : le prix exact sera calculé en fonction du modèle et du terrain choisi. Toutes les villas sont construites sur des terrains rustiques de plus de 10 000 m2, dont environ 2 500 m2 seront clôturés. Les villas disposent d'une cuisine américaine avec salon, de placards intégrés, d'une piscine privée, d'un porche, d'un débarras et d'une place de parking extérieure. Plusieurs terrains sont disponibles, le prix a été calculé sur la base d'un terrain de 77 500 euros (si vous choisissez un autre terrain, la différence sera payée ou remboursée en fonction du prix de celui-ci). Réalisé en autopromotion, livraison dans un délai de 12 mois à compter de l'octroi du permis. Si vous recherchez un environnement calme, à proximité de villages typiques espagnols loin de la foule touristique, entouré de montagnes, avec un très grand terrain et à environ 30 minutes de la mer, cette maison est faite pour vous. Aspe est un village espagnol typique avec tous les services nécessaires à la vie quotidienne, entouré de montagnes et avec plusieurs sites naturels à proximité où vous pourrez faire des randonnées ou du VTT. Situé à 25 km de la plage, à 9 km d'Elche et à environ 20 km de l'aéroport d'Alicante.

Photos de la propriété
Zone de propriété
Hypothèques

Cette information donnée ici est sujette à des erreurs et ne fait partie d'aucun contrat. L'offre peut être modifiée ou retirée sans préavis. Les prix n'incluent pas les coûts d'achat

Calculer les hypothèques

Échange de devises

  • Livres sterling: 510.435 GBP
  • Rouble russe: 510.435 RUB
  • Franc suisse: 541.523 CHF
  • Yuan chinois: 4.686.066 CNY
  • Dollar: 686.265 USD
  • Couronne suédoise: 6.349.896 SEK
  • La couronne norvégienne: 6.514.269 NOK

Contactez-nous

Responsable del tratamiento: RODRIGO SUNSEA, S.L., Finalidad del tratamiento: Gestión y control de los servicios ofrecidos a través de la página Web de Servicios inmobiliarios, Envío de información a traves de newsletter y otros, Legitimación: Por consentimiento, Destinatarios: No se cederan los datos, salvo para elaborar contabilidad, Derechos de las personas interesadas: Acceder, rectificar y suprimir los datos, solicitar la portabilidad de los mismos, oponerse altratamiento y solicitar la limitación de éste, Procedencia de los datos: El Propio interesado, Información Adicional: Puede consultarse la información adicional y detallada sobre protección de datos Aquí.

Propriétés similaires

Contact WhatsApp
WhatsApp